4.99% FIXED RATE + ALL CLOSING COSTS PAID FOR A LIMITED TIME*
Ready Now

3159 Duck Heights Avenue
Royse City, TX 75189

$450,719
$442,990
*Disclaimer: The information provided by these calculators is intended for illustrative purposes only and is not intended to purport actual user-defined parameters. The default figures shown are hypothetical and may not be applicable to your individual situation. Be sure to consult a financial professional prior to relying on the results.
5
beds
4
baths
3,037
sqft
2
garage
Download Brochure Hawthorn II Floorplan Video Hawthorn II Virtual Tour

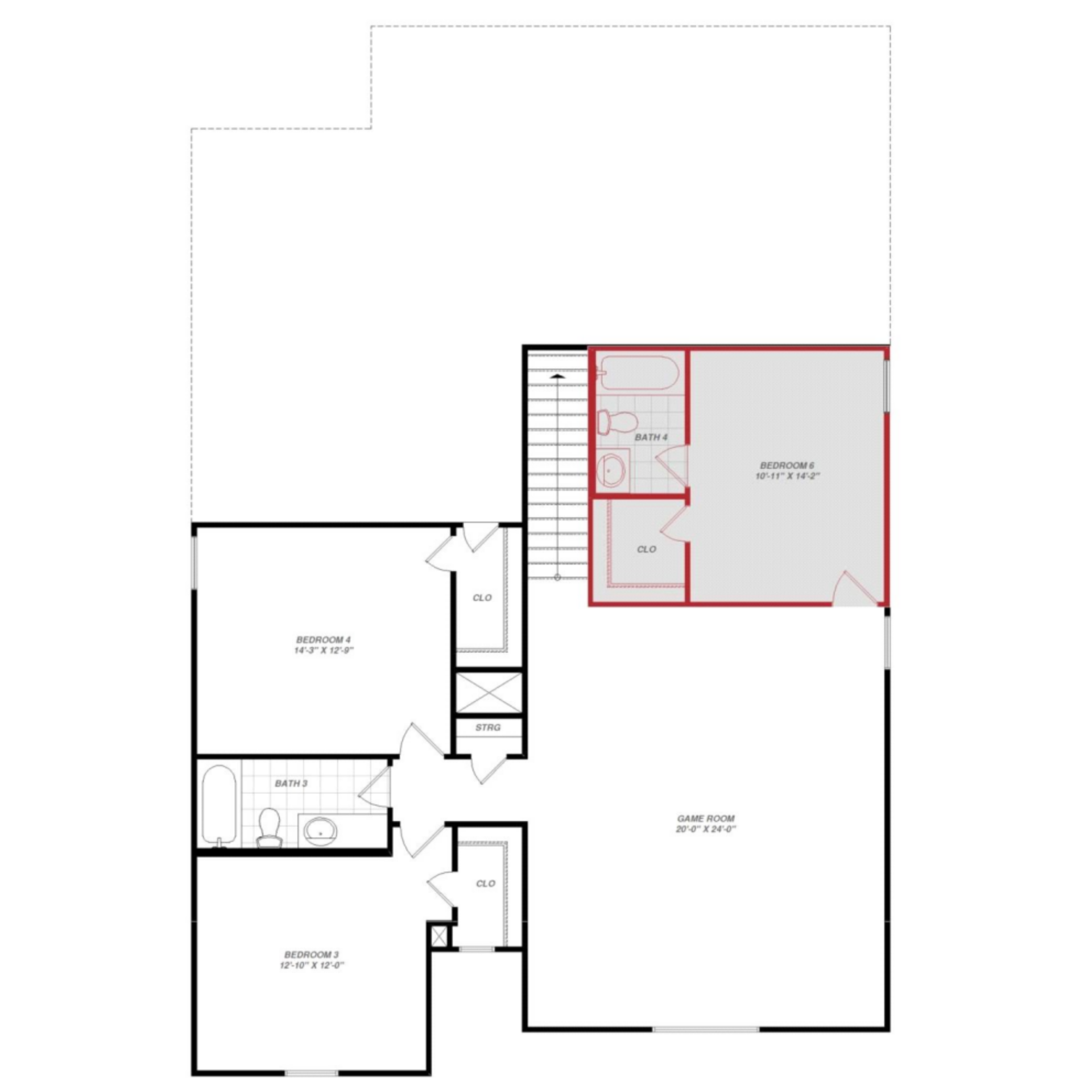
Hawthorn II Floor Plan

Waterscape
About This Home

The Hawthorn II is a well-designed 2-story home that balances comfort and functionality. The first floor includes a large primary bedroom with an en-suite bathroom. The spacious open layout connects the kitchen, living, and dining areas, perfect for daily living and entertainment. The standout kitchen features a large island for meal prep and casual dining. A flexible space can serve as a study or home office. Upstairs, a game room offers leisure space. An optional third-car garage enhances practicality and storage. The Hawthorn II is a versatile and inviting home for various lifestyles.


3159 Duck Heights

Learn More About Waterscape

Explore The Community

Contact Us

Monday through Saturday: 10:00 AM–6:00 PM; Sunday: 12:00 PM–6:00 PM
Call us: 833.711.1949
Schedule Tour Contact us

Model Location

1018 Watercourse Place Royse City, TX 75189
Get Directions

More Quick Move-In Homes